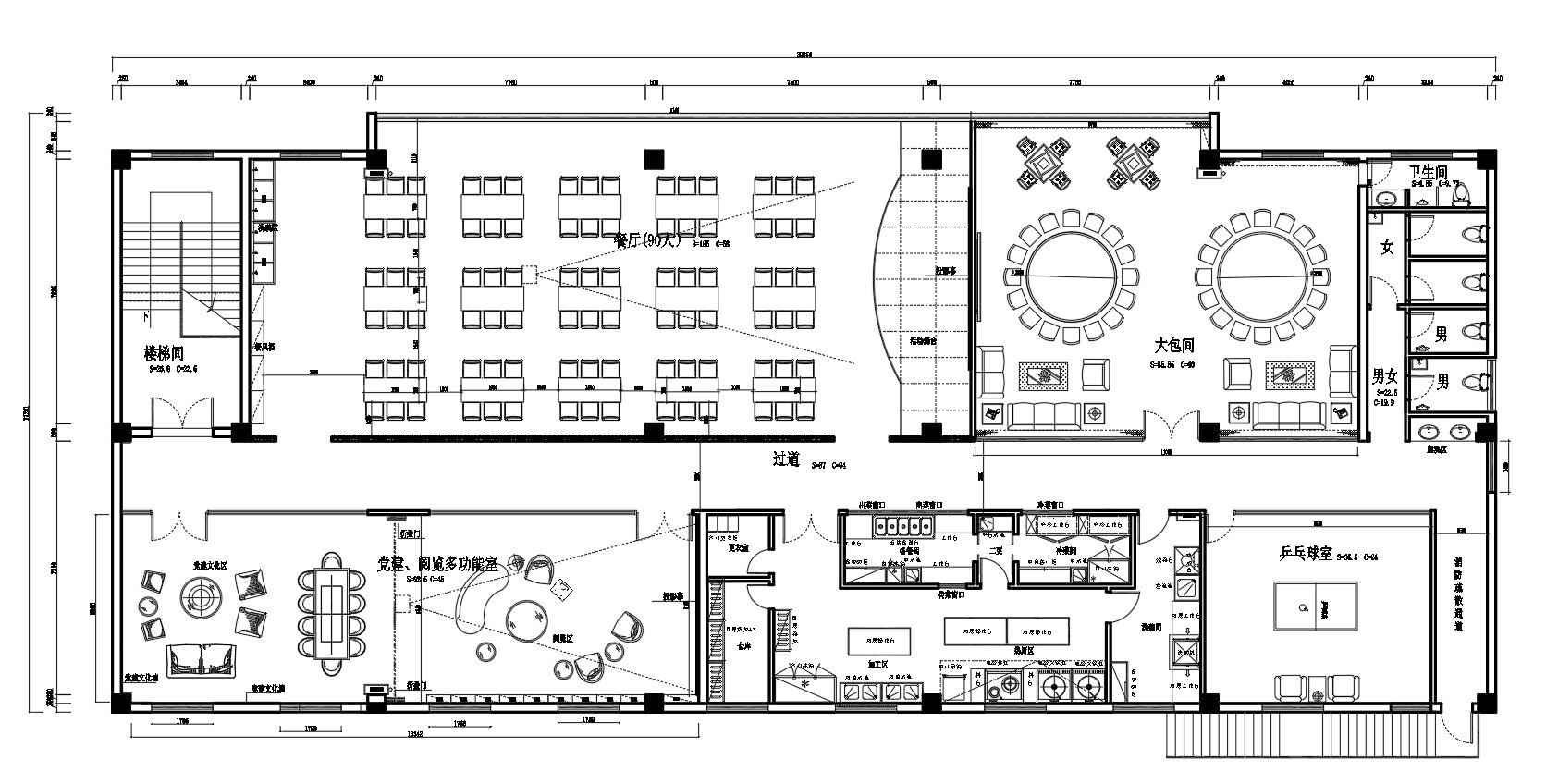
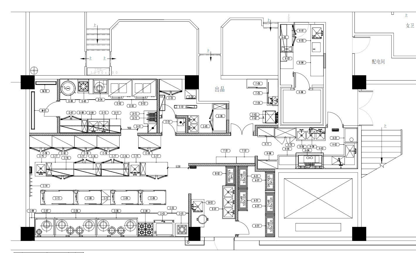
成都不锈钢厨具厂家告诉你大型学校食堂榴莲网站视频工作间设计要点
发布人: 四川榴莲视频APP在线观看榴莲网站视频设备公司 发布时间:2021.09.02
大型学校食堂榴莲网站视频加工的食物很多,加工制作的工艺也非常之多,为了能够完成如何复杂的食材加工,许多的大型学校食堂榴莲网站视频都分为几个功能区域。而榴莲视频APP在线观看也都知道每个功能区都有不同的设备,都有不同的工艺要求,因此,在设计榴莲网站视频功能间是就必须了解榴莲网站视频的实际结构和功能,这样才能够满足大型食堂榴莲网站视频的要求。那么,应该如何设计食堂功能间呢?作为专业的成都不锈钢厨具厂家,榴莲视频APP在线观看有多年的商用榴莲网站视频设计经验,现在就和大家讨论相关的知识。
作为专业的成都不锈钢厨具厂家,榴莲视频APP在线观看认为,在设计榴莲网站视频功能间时需要注意以下这些情况:
1、明确出餐特点
食堂、集中配餐、西点、零点饭店的主食加工间的区别相当大。主食加工间的出餐特点决定了所需设备的种类、型号和数量。主食加工间的设备种类、型号多,功能专一,不能互换使用。因此,主食加工间设计要明确经营特点、主营餐品种类和数量、需要的设备、加工工序与工艺特点,才能有针对性地设计,优化设计方案。
2、生制区与熟制区分开
一般在一个主食加工区域内设计两大区,即生制区与熟制区,按加工流程布设,互不掺混。生制区的和面机、压面机、面案、醒柜,按流水工序安排在一起。熟制设备安排在一起便于排烟、排气。较大的饭店设有主食特色风味食品,如西点等,应该设单独加工间,可以满足生制区低温干爽等环境控制指标,有利于馅料保鲜。
3、主要榴莲网站视频设备和配套设备要满足出餐需要
设备的种类、型号和数量要满足出餐需要,主要设备要根据实际需要配置齐全,保鲜工作台、水池、冷藏柜、面粉车、货架、碗柜等辅助配套设备也应配置齐全。尽量做到不用离位就可以完成存取原料、洗洗涮涮、取放餐具等动作。特别是食堂、配餐中心的主食加工间,出餐量比较大,要有足够的装载生制品与熟制品的送餐车架,并留出运送通道。例如,生制品中的馒斗子饺子,点心要装盘待用,需要车式馒头架、烤饼架等。
4、设备布局流程顺畅
主食运送量较大,特别是食堂和快餐店,都要运送大量的主食和汤粥,有时需要用推车运送,所以要留有较宽的通道,设备布局与通道衔接要十分简捷顺畅。较大的主食加工间要设生入与熟出的专用进出口,或用出餐口分开运行路线,确保加工传餐顺畅方便。
5、足够的能源保证
主食加工间设备大多数能耗较大,开火时间较长,用电设备如蒸柜、烤箱,功率都是十几千瓦或更大,所以需要油气、蒸汽、电力有足够的保证能力。
6、环保措施
主食加工间的熟制设备会产生大量的蒸汽、热气、油烟,特别是蒸汽,如果不能及时排出在冬季就会在榴莲网站视频内形成水雾,影响视线,遇物体还会凝结为水滴,使所有用品和墙面受潮科学合理地排出蒸汽、油烟,补充新风有利于改善工作环境和保持原料的新鲜。
7、存储空间
主食加工所用的原料,如食堂米面,用量都比较大,应根据实际需要设置运送、存储空间装盘待用的馒头、包子、饺子、点心,馅料与成品冷冻冷藏的制冷设备,原料、佐料、调料餐具、用具的柜架,都要有合适的存放空间。
8、及时可靠的信息传达
由于主食加工制作时间比较长,除米饭、馒头、包子、点心可以提前熟制备用以外,还有些根据客人需要必须随时加工、及时上桌的食品,如果信息传达不及时就会误事。
以上这些就是榴莲视频APP在线观看整理的关于商用榴莲网站视频功能间设计的相关知识,希望对大家能够有所帮助。







