你的浏览器已禁用javascript,请启用javascript,否则网页将非正常运行!













      1. 榴莲视频APP在线观看,榴莲网站视频,榴莲视频黄色视频,榴莲视频免费在线观看

        学校榴莲网站视频工程













            1. 榴莲视频APP在线观看,榴莲网站视频,榴莲视频黄色视频,榴莲视频免费在线观看

              COMPOSITION

              企事业单位食堂组成部分

              企业员工食堂榴莲网站视频设计的功能区域可划分食品接收、储藏及加工区域、烹饪作业区域、备餐洗涤区域、餐厅和其他行政工作用房。

              RegionalDivision

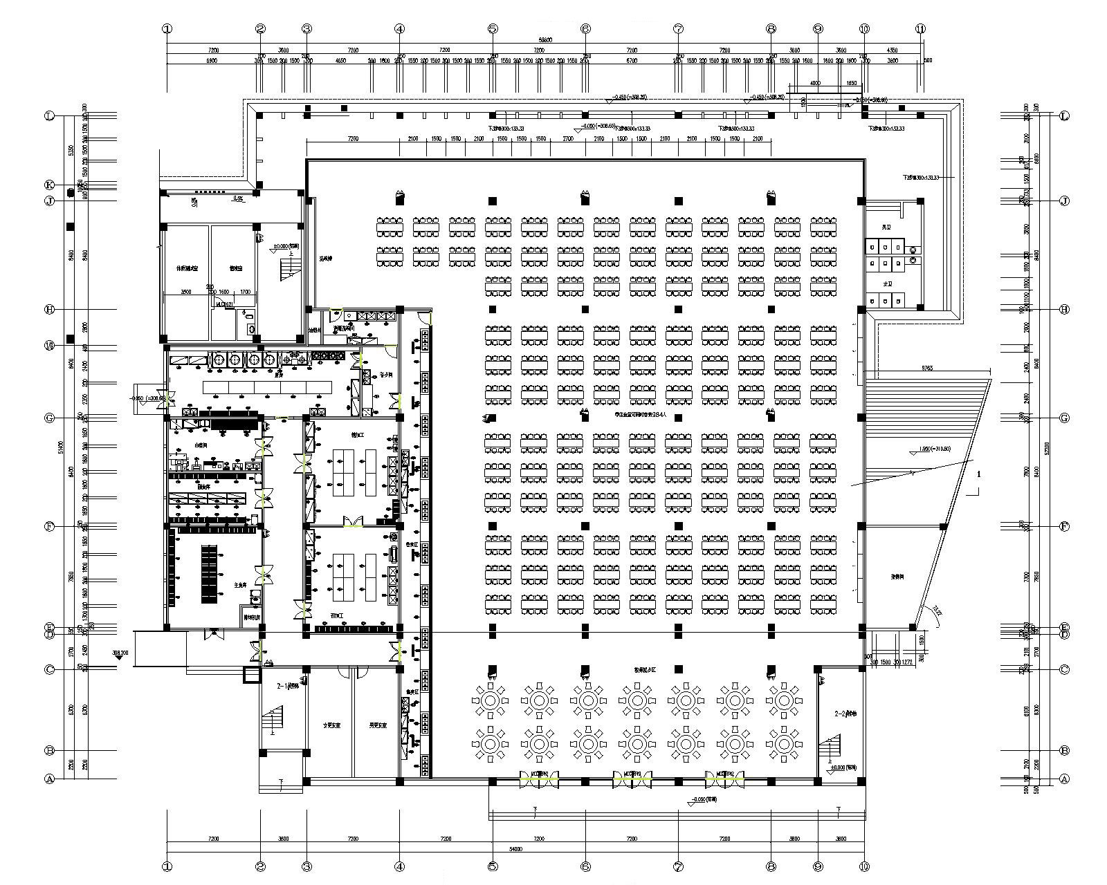
              企事业单位食堂区域划分

              规模较大的机关、企事业等单位均设有自己的员工食堂,其构成与一般饭店、酒楼的榴莲网站视频不同,它着重于主食、副食的制作加工,菜品相对简单。因员工食堂出菜时间比较集中,所以榴莲网站视频应多配置烹调加热设备。

              企事业单位食堂区域划分

              企事业单位食堂区域划分平面图

              RegionalDivision

              企事业单位食堂特殊性

              员工餐厅
              餐厅应有足够的净空高度,保持宽敞、明亮、通风、洁净。餐厅应面向集中人流主导方向,门前场地开阔,门厅畅通,便于人流的集中和疏散。
              备餐间、熟食间
              这里是熟食成品配制、分发、供应的主要场所,应采用全封闭式结构,与饭厅间应用玻璃墙相隔。
              热加工间
              主、副食品的热加工间是烹饪的主要场地,各类炉灶设备和烘烤设备集中,故而长条形的热加工间较为适用。
              主、副食品加工间
              主、副食品应分流进行加工,主食主要有面食、米饭的粗加工和成型,副食品加工主要分为拆洗和刀工切配。需要宽敞的加工场地,故而长 条形流水线式的副食加工间更为适宜。
              榴莲网站视频加工区域
              对原料进行粗加工、精加工等工作。
              榴莲网站视频加工区域
              主食加工间
              仓库
              按物资的类别分为主食仓、副食仓、闲杂仓、杂物仓、干货仓、冷库等。库房的位置要道路畅通,便于进货和方便领料。库房的运输走廊宽度 应不小于1.5米。

              Design considerations

              榴莲视频APP在线观看对企事业单位榴莲网站视频的解决办法

              企事业单位榴莲网站视频工程的设计应符合与健康安全要求相关的国家及地方法规,榴莲视频APP在线观看用专业眼光解决问题。

              例如,某些企业员工工作时需操作大型机械设备,容易沾染机油等物,极易导致饭前洗手不彻底,致使 细菌、污物入口。在设计这类企业食堂时,榴莲视频APP在线观看为其增设了一个专门的净手消毒入口。

              如何选用榴莲网站视频设备:由于事业单位内有大量重要资料,为保护资料及员工的人身安全,在选用榴莲网站视频设备时 炉膛和榴莲网站视频门应使用防火材料。优伯特只选择安全设备,紧抓质量保证,落实安全性能。有条件的单位, 应设置个人护理,注意设备的使用安全及定期保养。燃气榴莲网站视频需定期检查阀门泄漏情况,一经发现,应充 分通风,严禁明火,立即进行维护。电气设备的榴莲网站视频需定期检查线路是否老化、分裂、短路,清洗设备时 应断电,禁止直接用水冲洗。一旦所有设备发生故障,需及时进行检修,完成故障排除后方可继续使用。

              最后,每项功能都按需求设置,榴莲视频APP在线观看根据榴莲网站视频面积大小进行设计,符合厨师的工作需求。榴莲视频APP在线观看不会选择 质量太低的设备,而是在满足预算的基础上,根据相应型号,合理选择高质量的设备。

              Implementation process

              工程实施流程

              Why did you choose us?

              为什么选择榴莲视频APP在线观看

              • 丰富的榴莲网站视频设计经验
              • 专业化施工队伍
              • 实力雄厚品质保障
              丰富的榴莲网站视频设计经验
              丰富的榴莲网站视频设计经验
              丰富的榴莲网站视频设计经验
              丰富的榴莲网站视频设计经验
              专业化施工队伍
              专业化施工队伍
              专业化施工队伍
              专业化施工队伍
              实力雄厚品质保障
              实力雄厚品质保障
              实力雄厚品质保障
              实力雄厚品质保障

              Service case

              工程服务榴莲视频免费在线观看

              中石油集团公司
              中石油集团公司
              中海油集团公司
              中海油集团公司
              中国核动力研究院
              中国核动力研究院
              国家电网
              国家电网

              About Ubat

              关于榴莲视频APP在线观看

              网站地图

              
              网站地图